
В преддверие праздничных выходных со 2 по 4 ноября ГК «Территория жизни» делает выгодное предложение для всех, кто хотел купить квартиру в жилых комплексах от крупнейшего застройщика региона.
«В рамках спецпредложения покупатель получает скидку на квартиры в каждом проекте ГК «Территория жизни» - «Арбековская застава», «Лугометрия» и «Чаадаев». Представлены варианты разных планировок и метража. Поэтому желающим оформить сделку на самых выгодных условиях стоит поторопиться. Для комфорта наших клиентов в праздничные дни наши офисы будут работать в привычном режиме. Вы можете спланировать для себя удобное время и посетить наши офисы продаж, выбрать квартиру, посмотреть новые шоурумы, а наш ипотечный брокер предложит оптимальные варианты покупки», – рассказывает коммерческий директор ГК «Территория жизни» Оксана Маркова.
Какие выгодные предложения действуют?
«Арбековская застава». Специальное предложение для молодой семьи
Квартиры от 4,7 млн рублей в уже сданных домах. Для молодой пары, которая только начала совместную жизнь, отличным вариантом станет двушка евроформата. Просторная кухня-гостиная с возможностью зонирования и отдельная комната – отличный вариант.

Плюсом станет выгодная цена – от 78 000 рублей за квадратный метр. Платеж за ипотеку составит - 19 000 рублей в месяц. Дом сдан и вы сможете сразу переехать.
«Лугометрия». Для большой семьи
Чем больше семья – тем больше квартира вам нужна! Поэтому рассмотрите квартиры в сданных домах жилого комплекса «Лугометрия».

Здесь представлен богатый выбор квартир с готовой отделкой, кухонным гарнитуром и техникой. Просторные комнаты, большие кухни, возможности для зонирования.
Представленные квартиры уже сданы и готовы к тому, чтобы собственник заселился – потому что уже выполнена отделка «Все включено». Посмотрите на нее уже сейчас по ссылке.
«Чаадаев». Квартира ребенку на будущее.
Одно из перспективных направлений покупки – квартиры на будущее детям. Пока они растут – оформляйте сделку по выгодной цене – от 12 тысяч рублей в месяц!

Одно из главных преимуществ – прекрасное расположение в 10 минутах езды от центра города. Хорошая транспортная доступность и социальная инфраструктура. Рядом - школы , детские сады , медицинские и образовательные учреждения, магазины. Будущему студенту или молодому специалисту важно успеть и на учебу, и на встречу с друзьями и интересно провести время. Поэтому оформляйте сделку уже сейчас со скидкой более 100 000 рублей! И все с полностью готовой отделкой «Все включено». Серия 25. Оцените квартиру пройдя по ссылке.

Проекты от «Территории жизни» выбрали уже более 16 000 пензенцев. Причины: развитая качественная инфраструктура, высокие стандарты строительства, справедливая цена и полностью готовая отделка. Станьте и вы обладателем квартиры от «Территории жизни» на выгодных условиях. Оформите сделку сейчас, пройдя по ссылке. Интересующие вопросы можно задать менеджерам по телефону 203-000.
В праздничные дни офисы будут работать в привычном режиме, с 9:00 до 21:00 без перерывов. Поэтому можете спланировать визит в комфортное для вас время.
Адреса:
Ул. Героя России Жоги, 3.
Ул. Складская, 19, литер С.
*В рамках акции «Квартира дня» покупателю предоставляется пул квартир с дисконтом. Не суммируется с другими акциями. Полные условия уточняйте у представителей застройщика. В акции участвуют квартиры в домах расположенных по адресам:
г. Пенза, ул. Генерала Глазунова, 6, 1-я очередь. Цена за кв. м. – от 77 000 рублей (дом сдан);
г. Пенза, ул. Генерала Глазунова, 6, 2-я очередь. Цена за кв. м. – от 76 000 рублей (дом сдан);
г. Пенза, ул. Генерала Глазунова, 6, 1-я очередь. Цена на евродвушки – от 78 000 рублей (дом сдан).
г. Пенза, ул. Генерала Глазунова, 11, размер скидки 7% (дом сдан).
г. Пенза, ул. Побочинская, строение №1, размер скидки - 5%. Застройщик ООО СЗ «Центр недвижимости», проектная декларация на сайте наш.дом.рф;
г. Пенза, ул. Побочинская, строение №2, размер скидки - 7%. Застройщик ООО СЗ «Центр недвижимости», проектная декларация на сайте наш.дом.рф;
г. Пенза, ул. Побочинская, строение №3 и №4, размер скидки - 4%. Застройщик ООО СЗ «Жилье», проектная декларация на сайте наш.дом.рф;
г. Пенза, ул. Побочинская, строение №17 и №18, размер скидки - 9%. Застройщик ООО СЗ «СМАРТ», проектная декларация на сайте наш.дом.рф;
г. Пенза, ул. Яшиной, 2, 4, 6, размер скидки - 10% (дома сданы);
г. Пенза, ул. Яшиной, 5, 9, размер скидки - 9% (дома сданы);
Г. Пенза, ул. Чаадаева стр. №1, этапы №1, №2; размер скидки 4%. Застройщик ООО СЗ «Лугометрия 11», проектная декларация на сайте наш.дом.рф;
Количество квартир ограничено! Список квартир уточняйте у представителей застройщика.Срок действия акции – до 5 ноября 2025.
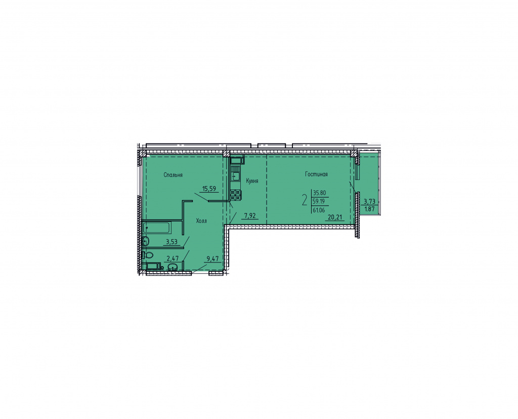
**Расчет произведен для квартиры площадью 61,06 кв.м., расположенной по адресу г.Пенза, ул. Генерала Глазунова, 6, 1-я очередь. Размер ПВ - 30,01% от стоимости квартиры. Застройщик – ООО СЗ «Т-Строй», проектная декларация на сайте наш.дом.рф.
***Расчет произведен для квартиры площадью 99,8 кв.м., расположенной по адресу г.Пенза, ул. Яшиной, 2. Размер ПВ - 30,01% от стоимости квартиры. Застройщик – ООО СЗ «Лугометрия 19», проектная декларация на сайте наш.дом.рф.
****Расчет произведен для квартиры площадью 32,17 кв.м., расположенной по адресу г.Пенза, ул. Чаадаева стр. №1, этапы №1. Размер ПВ - 30,01% от стоимости квартиры. Застройщик – ООО СЗ «Лугометрия 11», проектная декларация на сайте наш.дом.рф.
Реклама, ООО СЗ «Центр Недвижимости». ИНН: 7729741151. ERID: 2SDnjeSNNK