Чем больше квартира — тем больше ваша выгода! Группа компаний «Территория жизни» объявляет о продолжении действия программы «Утраиваем маткап»*.
В рамках программы, предлагаемой крупнейшим застройщиком, покупатели могут получить выгоду до 1,9 млн рублей при покупке квартиры с большой площадью. Мера поддержки ориентирована на семьи с детьми. Важно также отметить, что программа распространяется на квартиры в сданных домах, а это означает быстрый переезд.
«Мы четко связываем размер предоставляемой скидки с размером материнского капитала. В этом году субсидию проиндексировали, а следовательно, проиндексирован и размер скидки, он составляет до 1,9 млн рублей. Отличный повод использовать выплату для покупки квартиры большой площади!», — рассказывает коммерческий директор ГК «Территория жизни» Оксана Маркова.

Выгоду давно оценили покупатели. «Мы давно хотели приобрести квартиру в «Лугометрии». Живем рядом, часто гуляем по современному району, который нравится семье. И когда узнали о старте акции, сомнений не оставалось – решили сразу идти и оформлять сделку, поскольку сертификат еще не был реализован. Выбрали квартиру большей площади, сразу на перспективу», – рассказывает клиент офиса продаж Алексей.
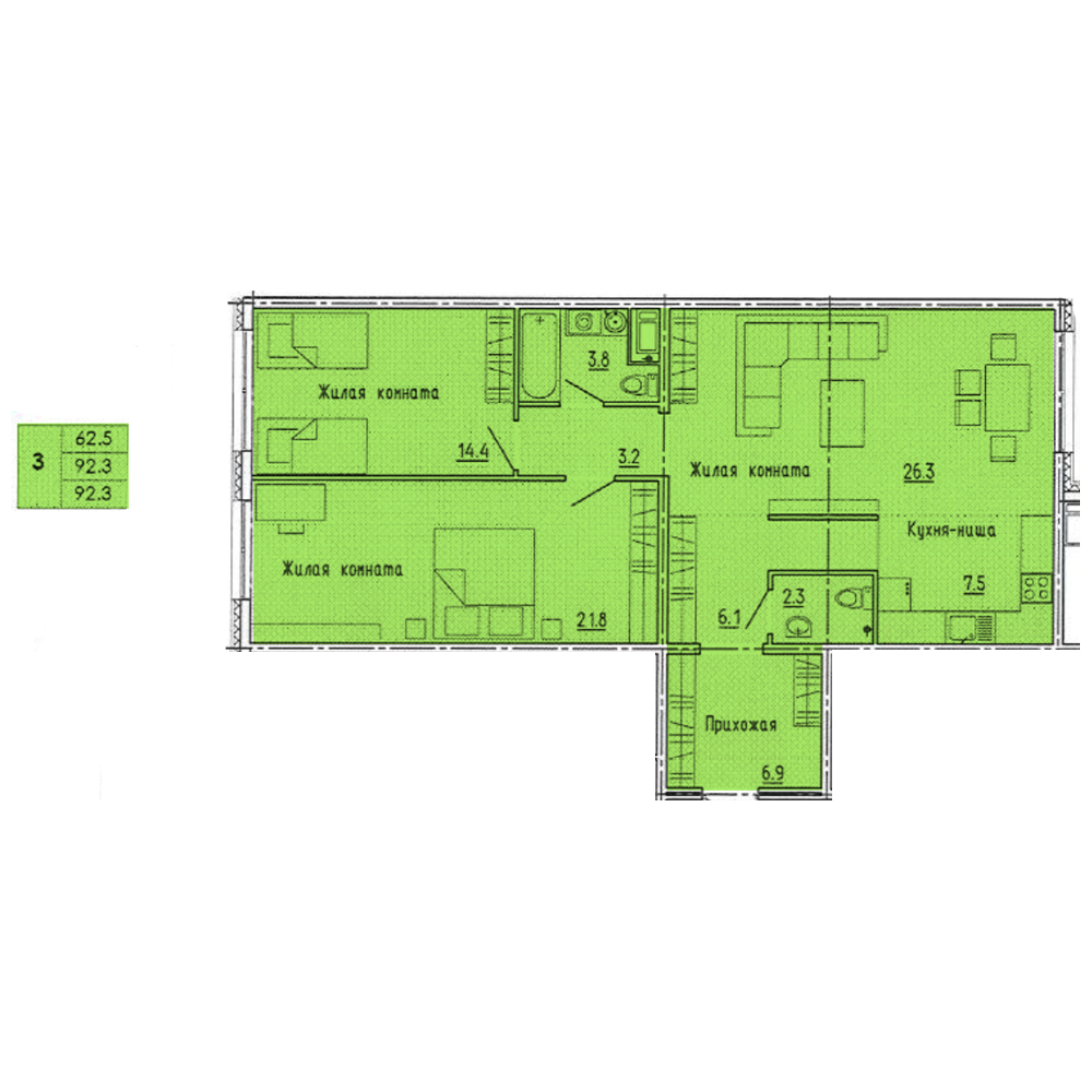
Как скидка от «Территории жизни» влияет на квартиру? Возьмем конкретную квартиру: просторная трешка в строении №16 с красивым номером 444.

В случае использования материнского капитала вы получаете утроение - скидку 1,9 млн рублей. Ваш ежемесячный платеж уменьшается больше чем на 10 000 рублей!
Многие покупатели выбирают квартиры от "Территории жизни" из-за полной готовности к заселению. Купив квартиру в "Лугометрии" вашей семье остается только расставить мебель и предметы интерьера. Ведь в квартире уже выполнена чистовая отделка:
· оклеены обои на флизелиновой основе;
· уложен прочный ламинат светлых тонов;
· установлены натяжные потолки с ярким точечным освещением;
· пластиковые окна;
· межкомнатные двери;
· санузел: стены и пол выложены плиткой, подключена сантехника брендовых производителей, установлен санфаянс;
· есть стиральная машина.

В кухне установлен гарнитур со встроенной техникой: варочной панелью, духовым шкафом и вытяжкой. А в квартирах большой площади новых жителей ждет вместительная посудомоечная машина. Праздничный ужин в день переезда? Это реальность с квартирой "Лугометрии".
Увидеть квартиру можно уже сейчас благодаря рум-туру.
Жилой комплекс "Лугометрия" - это семейный микрорайон, с самодостаточной и современной инфраструктурой. И с каждым годом власти и застройщик поднимают качество жизни. Вводятся в эксплуатацию новые дома, современные дворы с игровыми площадками, спортивным оборудованием, многоуровневым озеленением. В этом году продолжается строительство нового пешеходного бульвара, который станет центром притяжения для жителей всего района. Уже распахнул двери духовно-просветительский центр в Храмовом комплексе преподобного Вениамина Печерского. Строительство новой школы в этом году планируется вывести на финальный этап. А на общественном транспорте можно уехать в любую точку города.

Выбирая проект "Территории жизни", вы получаете спокойную жизнь в семейном микрорайоне.
Используйте поддержку государства с выгодой. Менеджеры расскажут обо всех действующих предложениях, ипотечных программах и индивидуально помогут подобрать подходящий вариант. Оформить заявку на утроение материнского капитала можно уже сейчас, пройдя по ссылке. Или получите исчерпывающую консультацию в офисе продаж:
· Улица Героя России Жоги, 3. Режим работы, с 9:00 до 21:00.
Другие предложения на сайте территорияжизни.рф.
*Оценивайте свои возможности и риски! Изучите условия акции! Название рекламной акции «Утраиваем материнский капитал». Организатор ООО "МК". В рамках акции предоставляется дополнительная скидка, общий размер которой не должен превышать 1 926 486,34 рублей. Скидка предоставляется при предъявлении сертификата о материнском (семейном) капитале и его реализации при покупке квартиры в рамках проводимой акции. Срок действия акции до 31.12.2026 года.
В акции участвуют квартиры площадью более 91 кв.м., в домах, расположенных по адресу: ул. Яшиной, 2, 4, 10, 12. Застройщик: ООО СЗ «Лугометрия 19», ООО СЗ «Лугометрия 20», ООО СЗ "Лугометрия 5". Проектная декларация на наш.дом.рф. Дома сданы. Размер материнского капитала с 1 февраля 2026 года составляет: 728 921,90 рублей на первого ребенка (рожденного или усыновленного с 2020 года) или на второго ребенка, если он родился до 2020 года. При рождении второго ребенка, если первый родился до 2020 года, семья получит дополнительную выплату в размере 234 321,27 рублей. Если первый ребенок родился в 2020 году или позже, то размер выплаты на второго ребенка будет 963 243,17 рубля. Подробности на территорияжизни.рф и по телефону +7(8412) 203-000.
Реклама. ООО СЗ "Лугометрия 5". ИНН: 5835137325. ERID: 2SDnjca6Ku3